Аренда, Офисное помещение, Изменено: 13 ноября 2025 г.
ID объекта: 190973
| Bright Rich | CORFAC International |
Телефон
Показать телефон |
|
Электричество: есть
Отопление: есть
Охрана: есть
Интернет: есть
|
Состояние ремонта: Отличное
Этаж: 4
Этажей всего: 7
|
|
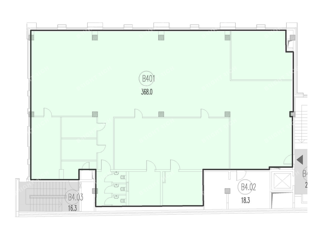
Снять, арендовать офисное помещение:Офисное помещение 368 кв. м в бизнес-центре «на 2-й Советской 17» от собственника. Объект скоро освободится. Успейте забронировать на выгодных условиях. Готовность ко въезду уточняется по запросу.Район: Центральный. Ближайшие станции метро: Площадь Восстания, Маяковская, Площадь Александра Невского-2. Характеристики: - Класс: B +; - Арендопригодная площадь: 5523.3; - Код налоговой: 42; - Высота потолков: 2.7 м; - Наличие лифта: Есть; - Кол-во мест наземного паркинга: 12; - Кол-во мест подземного паркинга: 19; - Охрана: Да; - Интернет-провайдеры: Мегафон, МТС, Оранж, Смарт Телеком, Билайн, Вымпелком. Арендная ставка: 2 500 руб. /кв. м в месяц. Финансовые условия: - В стоимость включено: OPEX, Коммунальные услуги; - Оплачивается отдельно: Интернет, НДС, Телефония, Уборка, Электроэнергия. Прямой договор с собственником. Без комиссии и скрытых платежей. Оперативно организуем просмотр и предоставим необходимую информацию. ID = c_691258. |
Похожие объекты в Центральном районе
Статьи
Всего на рынке Петербурга по итогам первого полугодия 2022 года, представлены 4,6 тыс. юнитов, из них 70% — сервисные апартаменты, 20% — рекреационные объекты и 5% — несервисные и элитные юниты. В предложении стали лидировать рекреационные апартаменты.
Автор: Редактор сайта
Дата: 2 сентября 2022 г.
Эксперты Knight Frank St Petersburg подвели итоги 2019 года в сегменте складской и индустриальной недвижимости.
Автор: Мирзакаримова Камила
Дата: 28 января 2020 г.
О том,как офис становится инструментом маркетинга, игроки рынка недвижимости говорили в рамках дискуссии «Офис как инструмент HR и маркетинга».
Автор: Редактор сайта
Дата: 17 декабря 2019 г.
Новости
11 декабря
Локальные IT-компании, как правило, выбирают помещения в бизнес-центрах класса В (более 90% арендованных площадей), тогда как международные игроки отдавали предпочтение офисам класса А.
8 декабря
По итогам 2023 г. иностранные собственники продали активы на 256 млрд рублей, что в 2,8 раз больше, чем за весь 2022 год (+177% к 2022 г., +292% к 2021 г.). За 2022-23 гг. иностранные собственники продали активы на 373 млрд руб.


