Аренда, Магазин, Изменено: 21 апреля 2026 г.
ID объекта: 192582
| Адвекс |
|
Отопление: есть
Этаж: 2
|
Этажей всего: 3
|
|
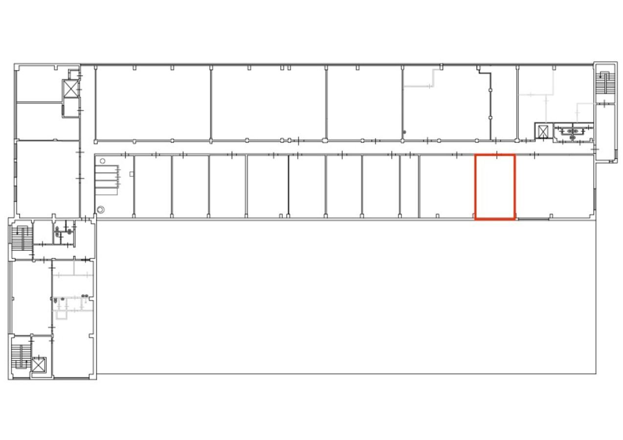
Снять, арендовать магазин:ID: 832551Аренда помещения свободного назначения 56.8 кв. м на территории производственно-складского комплекса. Второй этаж Грузовой лифт Высокие потолки Отопление Режим работы: круглосуточный, без выходных. Расположение: Красногвардейский район -5 км от КАД -15 минут езды от Свердловской набережной, станции метро "Ладожская" и Ладожского вокзала. Инфраструктура: столовая, парковки, спортивный зал. Без комиссии, от собственника. Арендная ставка включает НДС. Коммунальные услуги оплачиваются отдельно. Минимальный срок аренды 11 месяцев. |
Похожие объекты в Красногвардейском районе
Статьи
Всего на рынке Петербурга по итогам первого полугодия 2022 года, представлены 4,6 тыс. юнитов, из них 70% — сервисные апартаменты, 20% — рекреационные объекты и 5% — несервисные и элитные юниты. В предложении стали лидировать рекреационные апартаменты.
Автор: Редактор сайта
Дата: 2 сентября 2022 г.
Эксперты Knight Frank St Petersburg подвели итоги 2019 года в сегменте складской и индустриальной недвижимости.
Автор: Мирзакаримова Камила
Дата: 28 января 2020 г.
О том,как офис становится инструментом маркетинга, игроки рынка недвижимости говорили в рамках дискуссии «Офис как инструмент HR и маркетинга».
Автор: Редактор сайта
Дата: 17 декабря 2019 г.
Новости
11 декабря
Локальные IT-компании, как правило, выбирают помещения в бизнес-центрах класса В (более 90% арендованных площадей), тогда как международные игроки отдавали предпочтение офисам класса А.
8 декабря
По итогам 2023 г. иностранные собственники продали активы на 256 млрд рублей, что в 2,8 раз больше, чем за весь 2022 год (+177% к 2022 г., +292% к 2021 г.). За 2022-23 гг. иностранные собственники продали активы на 373 млрд руб.

