Аренда, Магазин, Изменено: 7 февраля 2026 г.
ID объекта: 192240
| Адвекс |
|
Электричество: есть
Отопление: есть
Канализация: есть
|
Состояние ремонта: Евроремонт
Этажей всего: 4
|
|
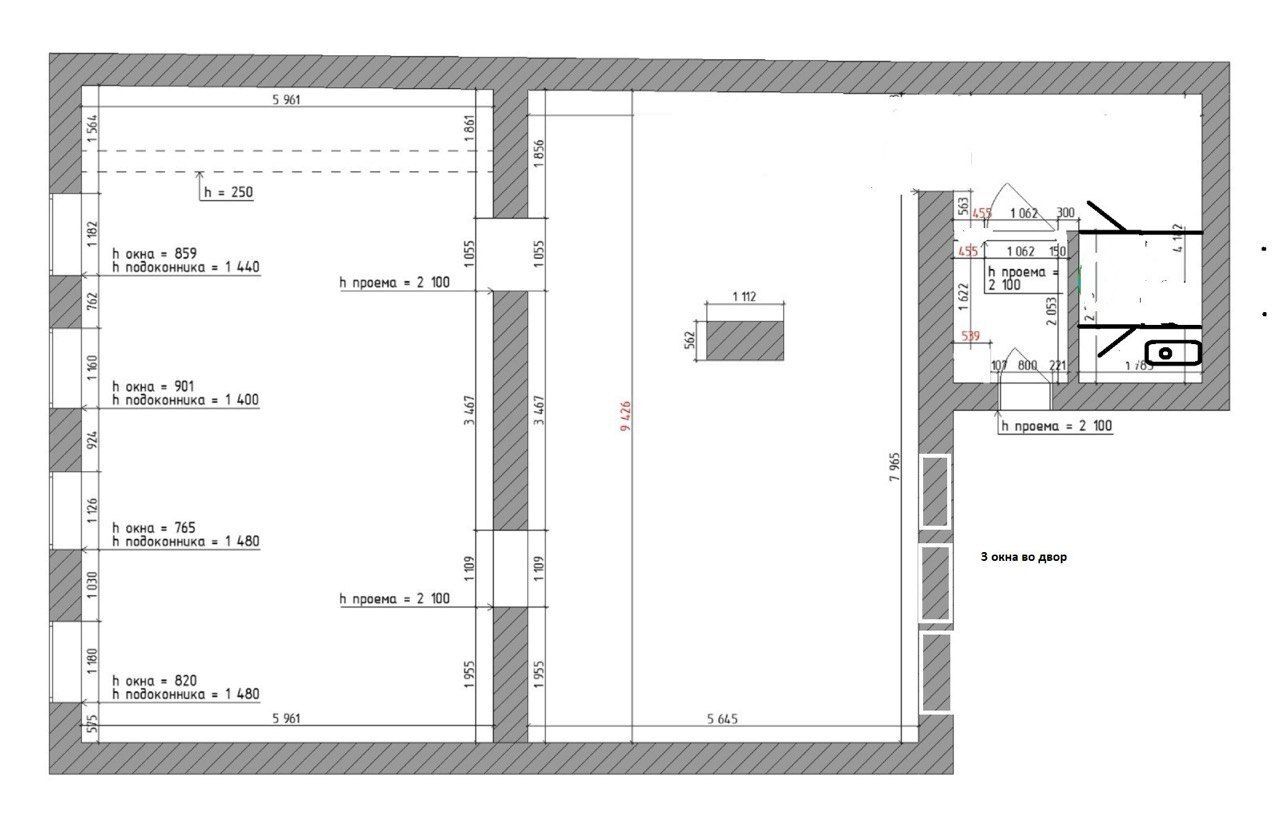
Снять, арендовать магазин:ID: 832322Предлагается к аренде без комиссии очень красивое помещение с новым ремонтом по дизайнерскому проекту. Помещение имеет 4 фасадных окна и имеет отдельную входную группу (входная группа также отремонтирована). Фото помещения реальные. Потолки 2.25 Идеально подойдет под офис/магазин/студию/маникюрный салон/салон красоты/спа салон/студию йоги/пункт выдачи заказов, либо любую другую деятельность. Напротив, в 50 м расположены 2 университета: СПбГАСу и Военмех, кафе, а также несколько Бизнес-Центров, что обеспечит постоянный приток клиентов. До Московского проспекта 3 минуты пешком. До метро Технологический институт 5 минут пешком. Этажом выше находится свадебный салон. Планировка двухсторонняя, состоит из входной группы (ресепшн), санузла (с возможностью установки душа) и двух больших комнат. Отдельный вход со двора сразу у арки (нет пересечения с соседями), крыша и боковые части надежно защищены от дождя, снега и талых вод. Выполнена самая современная гидроизоляция всего помещения, заменена вся инженерия. Помимо 7 окон предусмотрена дополнительная вентиляция всех комнат. Прямая канализация (без соло лифта), центральные ГВС, ХВС, отопление. Мощность 10 кВт, есть резерв для увеличения. Звоните, записывайтесь на просмотр. |
Похожие объекты в Адмиралтейском районе
Статьи
Всего на рынке Петербурга по итогам первого полугодия 2022 года, представлены 4,6 тыс. юнитов, из них 70% — сервисные апартаменты, 20% — рекреационные объекты и 5% — несервисные и элитные юниты. В предложении стали лидировать рекреационные апартаменты.
Автор: Редактор сайта
Дата: 2 сентября 2022 г.
Эксперты Knight Frank St Petersburg подвели итоги 2019 года в сегменте складской и индустриальной недвижимости.
Автор: Мирзакаримова Камила
Дата: 28 января 2020 г.
О том,как офис становится инструментом маркетинга, игроки рынка недвижимости говорили в рамках дискуссии «Офис как инструмент HR и маркетинга».
Автор: Редактор сайта
Дата: 17 декабря 2019 г.
Новости
11 декабря
Локальные IT-компании, как правило, выбирают помещения в бизнес-центрах класса В (более 90% арендованных площадей), тогда как международные игроки отдавали предпочтение офисам класса А.
8 декабря
По итогам 2023 г. иностранные собственники продали активы на 256 млрд рублей, что в 2,8 раз больше, чем за весь 2022 год (+177% к 2022 г., +292% к 2021 г.). За 2022-23 гг. иностранные собственники продали активы на 373 млрд руб.


