Наверх

Продажа склада деревня Коммолово

Продажа, Склад, Изменено: 19 апреля 2026 г.
ID объекта: 192289
Площадь

25000 м2

60 000
тыс. руб
кв.м. | $ |
Адвекс
Электричество: есть

Купить склад:

ID: 832332
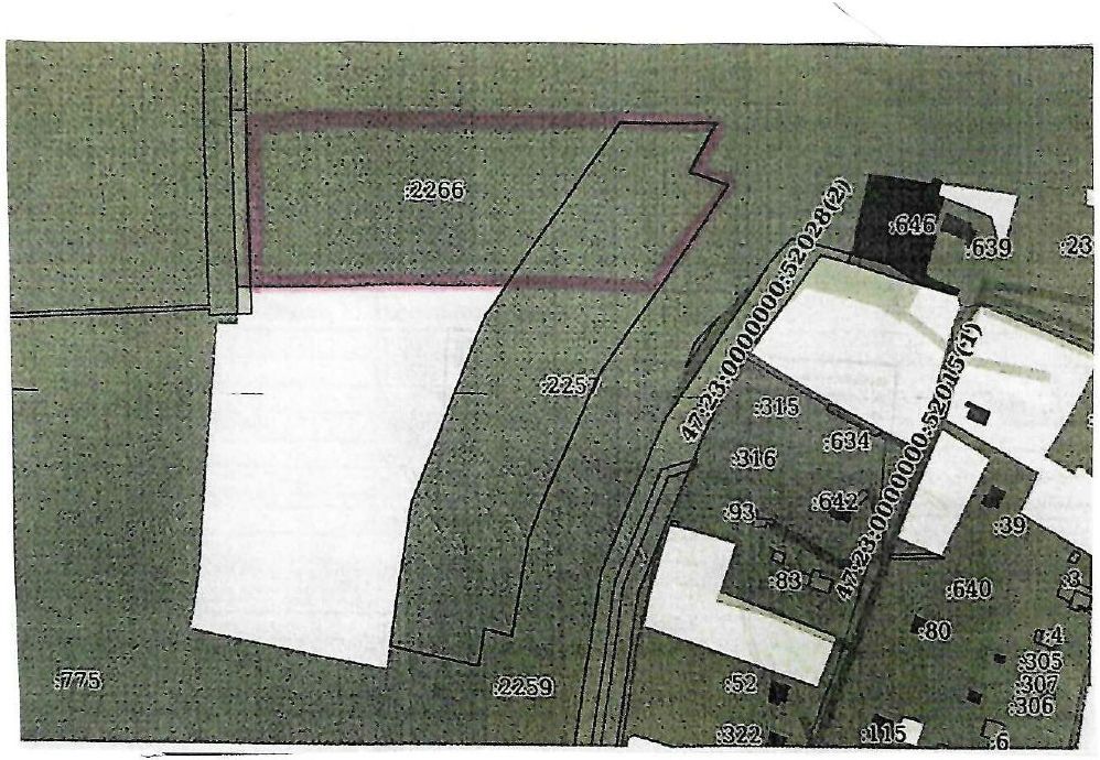
Продается земля 1.5 га промышленного назначения и 1.0 га сельхоз. назначения
по адресу: Ленинградская обл., Гатчинский р-он, д. Коммолово
-Выделенная электрическая мощность – 150 кВт
-Возможность подключения газа
-Грунтовая дорога
-Установлен забор с воротами
-Вывезен плодородный грунт
-Получено разрешение на строительство
ВОЗМОЖНОЕ НАЗНАЧЕНИЕ:
-4.5 класс промышленного назначения
-склад
-производство
-логистика
-РПЦ
Стоимость 240 000 руб. /сотка (продаем 2.5 га).
Реальным покупателям возможен торг.
Без комиссии.
Звоните, записывайтесь на просмотр.


Статьи

Всего на рынке Петербурга по итогам первого полугодия 2022 года, представлены 4,6 тыс. юнитов, из них 70% — сервисные апартаменты, 20% — рекреационные объекты и 5% — несервисные и элитные юниты. В предложении стали лидировать рекреационные апартаменты.
Автор: Редактор сайта
Дата: 2 сентября 2022 г.
Эксперты Knight Frank St Petersburg подвели итоги 2019 года в сегменте складской и индустриальной недвижимости. 
Автор: Мирзакаримова Камила
Дата: 28 января 2020 г.
О том,как офис становится инструментом маркетинга, игроки рынка недвижимости говорили в рамках дискуссии «Офис как инструмент HR и маркетинга».
Автор: Редактор сайта
Дата: 17 декабря 2019 г.

Новости

11 декабря
Локальные IT-компании, как правило, выбирают помещения в бизнес-центрах класса В (более 90% арендованных площадей), тогда как международные игроки отдавали предпочтение офисам класса А.
8 декабря
По итогам 2023 г. иностранные собственники продали активы на 256 млрд рублей, что в 2,8 раз больше, чем за весь 2022 год (+177% к 2022 г., +292% к 2021 г.). За 2022-23 гг. иностранные собственники продали активы на 373 млрд руб.