Аренда, Склад, Изменено: 21 января 2026 г.
ID объекта: 188973
| Bright Rich | CORFAC International |
Телефон
Показать телефон |
|
Электричество: есть
Отопление: есть
Канализация: есть
|
Состояние ремонта: Отличное
Этажей всего: 1
|
|
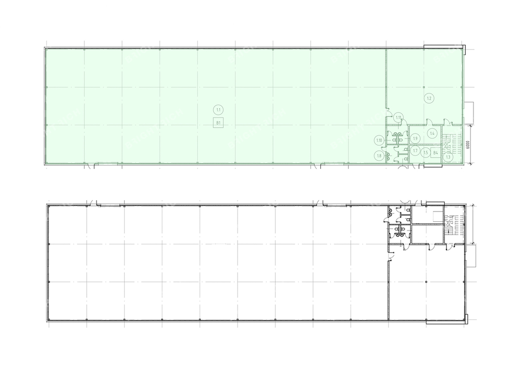
Снять, арендовать склад:Складское помещение 1 400 кв. м в «ПСК На Финляндской». Объект на стадии активного строительства, готовность ко въезду уточняется по запросу.Направление: Юг. Шоссе: Софийская ул. Расстояние от КАД: 15 км. Характеристики: - Класс: A; - Общая площадь мезонина: 402.5; - Ворота: Ворота на нулевой отметке; - Тип склада: Light Industrial; - Высота потолков: 6 м; - Нагрузка на пол: 5 т/ кв. м; - Система пожаротушения: Внешние гидранты и внутренние пожарные краны; - Тип пола: Полы с антипылевым покрытием; - Пожарная сигнализация: Да; - Шаг колонн: 18x66 м. Арендная ставка: 1 200 руб. /кв. м в месяц. Финансовые условия: - В стоимость включено: OPEX; - НДС OPEX: Включая НДС. Без комиссии и скрытых платежей для арендатора. Готовы оперативно организовать просмотр в удобное время, предоставить PDF-презентацию и план. ID = c_1774638. |
Похожие объекты в Колпинском районе
Статьи
Всего на рынке Петербурга по итогам первого полугодия 2022 года, представлены 4,6 тыс. юнитов, из них 70% — сервисные апартаменты, 20% — рекреационные объекты и 5% — несервисные и элитные юниты. В предложении стали лидировать рекреационные апартаменты.
Автор: Редактор сайта
Дата: 2 сентября 2022 г.
Эксперты Knight Frank St Petersburg подвели итоги 2019 года в сегменте складской и индустриальной недвижимости.
Автор: Мирзакаримова Камила
Дата: 28 января 2020 г.
О том,как офис становится инструментом маркетинга, игроки рынка недвижимости говорили в рамках дискуссии «Офис как инструмент HR и маркетинга».
Автор: Редактор сайта
Дата: 17 декабря 2019 г.
Новости
11 декабря
Локальные IT-компании, как правило, выбирают помещения в бизнес-центрах класса В (более 90% арендованных площадей), тогда как международные игроки отдавали предпочтение офисам класса А.
8 декабря
По итогам 2023 г. иностранные собственники продали активы на 256 млрд рублей, что в 2,8 раз больше, чем за весь 2022 год (+177% к 2022 г., +292% к 2021 г.). За 2022-23 гг. иностранные собственники продали активы на 373 млрд руб.

