Наверх

Продажа склада ул. Профессора Качалова, д. 15

Продажа, Склад, Изменено: 20 декабря 2025 г.
ID объекта: 190000
Площадь

7000 м2

550 000
тыс. руб
кв.м. | $ |
Адвекс
Электричество: есть
Отопление: есть
Канализация: есть
Этаж: 1
Этажей всего: 4

Купить склад:

ID: 832109
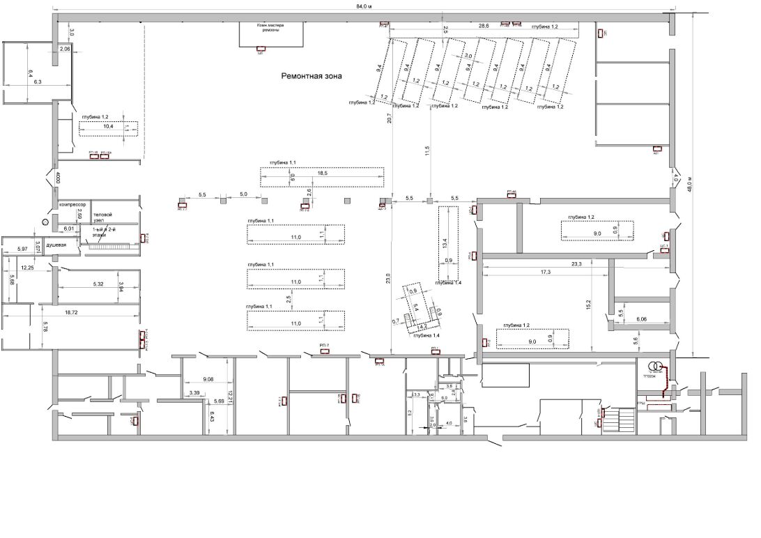
Продается имущественный комплекс офисный, складской и ремонтный комплекс легкового и грузового транспорта с земельным участком. Общая площадь объекта 19 760 кв. м. ОБЩЕЕ ОПИСАНИЕ: - выгодное расположение в центре Санкт-Петербурга (2.5 км от ст. м. Пл. Александра - общая площадь зданий - 6256 кв. м- общая площадь участка - 13560 кв. м (земля в собственности); - все коммуникации обновлены, перепланировки узаконены; - электрическая мощность, выделенная на комплекс - 400 кВт (с возможностью оперативного увеличения на 200-300 кВт); - водопроводные и канализационные сети находятся на балансе предприятия; - разрешенное потребление воды 500 м3 в месяц; - комплекс имеет полный комплект технической документации и свидетельства государственной регистрации прав собственности; - объекты комплекса соответствуют общим требованиям Госкомнадзора, а также отраслевых нормативных служб- телефонизация, доступ в интернет. ОБЪЕКТЫ НА ТЕРРИТОРИИ КОМПЛЕКСА: 1) Главный корпус: - административное 4-х этажное здание, полезная площадь 3185 кв. м, в том числе: - площадь офисных помещений — 1990 кв. м- площадь складских помещений — 158 кв. м- места общего пользования (вестибюль, коридоры, туалеты) — 532 кв. м- производственные помещения (на 2 этаже) — 505 кв. кв. м) Ремонтная зона - 560 кв. м- Оснащение: канава для ремонта авто и спецтранспорта — 16 шт, стенд развала сходимости для легковых автомобилей — 1 шт, стенд развала сходимости для грузовых автомобилей — 1 шт, напольные места для ремонта грузовых автомобилей — 6 мест, подъемники для ремонта автомобилей грузоподъемностью 5 тонн — 2 шт, подъемники для ремонта автомобилей грузоподъемностью 2.5 тонн — 5 шт, кран-балки грузоподъемностью 3.2 тонны — 5 шт3) Пристройка к главному корпусу (с КПП): - 3- х этажное производственное здание, общая площадь 1291 кв. м- площадь производственно-складских помещений — 1160 кв. м- КПП оборудован смотровой ямой для предрейсового осмотра автотранспорта — 25 кв. м- лестничные площадки и марши — 17.2 кв. м- бытовые помещения — 40 кв. м- грузовой лифт 4) Склад (. часть производственного здания): - общая площадь 689.6 кв. м- ремонтный блок 200 кв. м (ремонт тяжелой техники)- столярный цех 94.6 кв. м- производственно-складское помещение — 395 кв. м5) Ангар арочного типа металлический (отапливаемый) общей площадью 530 кв. м6) Спортивный комплекс с банной зоной и бассейном — 630 кв. м7) Резервная автономная котельная Yiessmmann8) Здание очистных сооружений ТЕХНИЧЕСКИЕ ДАННЫЕ: - централизованное отопление- тепловые сети находятся на балансе предприятия- имеется резервная автономная котельная фирмы Yiessmmann (Германия) мощностью 1520 кВт на дизельном топливе- на балансе предприятия имеются: силовой трансформатор 400 кВт, кабельная перемычка к трансформатору 30 м — Автомат АВ, просмотр по телефону.


Статьи

Всего на рынке Петербурга по итогам первого полугодия 2022 года, представлены 4,6 тыс. юнитов, из них 70% — сервисные апартаменты, 20% — рекреационные объекты и 5% — несервисные и элитные юниты. В предложении стали лидировать рекреационные апартаменты.
Автор: Редактор сайта
Дата: 2 сентября 2022 г.
Эксперты Knight Frank St Petersburg подвели итоги 2019 года в сегменте складской и индустриальной недвижимости. 
Автор: Мирзакаримова Камила
Дата: 28 января 2020 г.
О том,как офис становится инструментом маркетинга, игроки рынка недвижимости говорили в рамках дискуссии «Офис как инструмент HR и маркетинга».
Автор: Редактор сайта
Дата: 17 декабря 2019 г.

Новости

11 декабря
Локальные IT-компании, как правило, выбирают помещения в бизнес-центрах класса В (более 90% арендованных площадей), тогда как международные игроки отдавали предпочтение офисам класса А.
8 декабря
По итогам 2023 г. иностранные собственники продали активы на 256 млрд рублей, что в 2,8 раз больше, чем за весь 2022 год (+177% к 2022 г., +292% к 2021 г.). За 2022-23 гг. иностранные собственники продали активы на 373 млрд руб.